Dom Słońsko gm. Inowrocław
Słońsko gm. Inowrocław Pokaż na mapie ›
Ogłoszenie archiwalne Wygasło: Sobota, 24 Maj, 2025 20:35
340 000 zł
2194 zł/m2
Szczegóły ogłoszenia
- Kategoria: Domy / Sprzedaż
- Powierzchnia:155 m2
- Liczba pokoi:1 pokój
- Pow. działki:1126 m2
- Rynek:Pierwotny
- Sprzedaż:Pośrednik
- Cena: 340 000 zł / 2194 zł/m2
- Ulica:
Opis oferty
DOMUM NIERUCHOMOŚCI prezentuje do sprzedaży nieruchomość gruntową niezabudowaną z domem piętrowym z garażem w budowie - zlokalizowaną we wsi Słońsko - 8 km od Inowrocławia.Położenie- wieś Słońsko, prężnie rozwijająca się lokalizacja blisko miasta, dojazd drogą asfaltowa gminną. Okolica to nowo powstałe nieruchomości zabudowane oraz pola uprawne i nieduży las.
Działka - 1126 m2 (w trakcie podziału)
Orientacja: północ/południe
Budynek mieszkalny - w budowie, stan surowy otwarty jak na załączonych zdjęciach plus okna i drzwi wejściowe.
Media: prąd+woda,
Powierzchnia zabudowy:110 m2
Powierzchnia użytkowa: 155,91m2
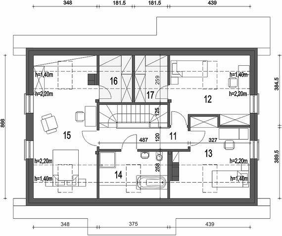
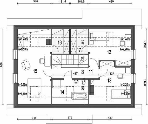
Rozkład pomieszczeń:
1.Wiatrołap 3,90m²
2. Łazienka 3,97 m²
3. Korytarz 6,79 m2
4. Schody 2,12 m2
5. Pokój 9,75 m²
6. Salon 22,15 m²
7. Kuchnia 7,10 m²
8. Spiżarnia 2,57 m²
9. Garaż jednostanowiskowy 19,10 m²
10. Kotłownia 6,84 m²
Razem parter: 80,33 m ²
11.Korytarz 6 ,06 m²
12. Pokój z garderobą 16,82 m²
13. Pokój z garderobą - 18 m²
14. Łazienka 7,94 m²
15. Pokój 23,92 m²
16. Klatka schodowa 2,12 m²
Razem poddasze: 75,58 m²
Spokojna, słoneczna okolica dobrze skomunikowana z miastem.
Zapraszamy do kontaktu i na prezentacje. Usługa pośrednictwa jest usługą płatną.
Zapraszam do współpracy.
Iwona Halak
tel. 530 - pokaż numer telefonu -
Licencja PFRN 21370
www.domum-nieruchomosci.com
@
SPRZEDAJ/KUP/WYNAJMIJ BEZPIECZNIE Z LICENCJONOWANYM POŚREDNIKIEM!~Iwona Halak 530 - pokaż numer telefonu -
Numer oferty: 99650564
Sprawdź zainteresowanie tym ogłoszeniem
Wyświetlenia
Data dodania
Ostatnio widziany
Obserwujących
Wysłane zapytania
Odsłony telefonu
Powiadom o podobnych ogłoszeniach
Lokalizacja: Słońsko
Kategoria: Nieruchomości » Domy » Sprzedaż
Cena: od 289000 zł do 391000 zł Powierzchnia : od 132 m2 do 178 m2
Chcę otrzymywać powiadomienia o nowych ofertach
To ogłoszenie jest archiwalne i może być nieaktualne.
- Wypromuj ogłoszenie
- Zgłoś naruszenie
- Edytuj/usuń ogłoszenie
- Udostępnij ogłoszenie
- Dodaj na Facebook
























